BACK TO RESIDENCES

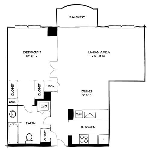
Design 1E

Diagram
Vaughan Place - Washington, DC - Floor Plan Diagram
Vaughan Place - Washington, DC - Kitchen

One clear monthly price that includes 1 gig high-speed internet and all required fees—no surprises, just seamless living.

Available Units